Projekt domu Eco 47

Powierzchnia użytkowa:
217,88m2
Powierzchnia zabudowy:
155,32m2
Kubatura:
1074,49m3
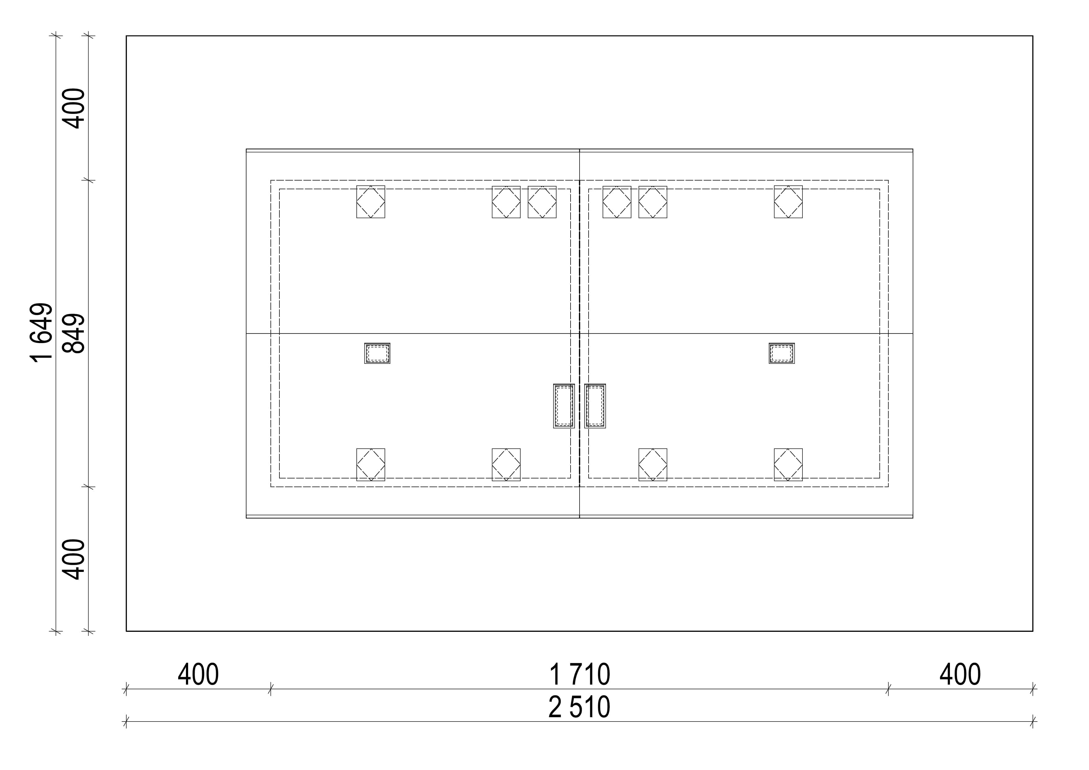
Wymiary budynku:
17,10m × 8,49m
Wysokość budynku:
8,56m
Kąt nachylenia dachu:
42o
Min. wymiary działki:
25,10m x 16,49m

RZUT PARTERU

1. Wiatrołap 4,58 m2
2. Hol 5,88 m2
3. Kuchnia z jadalnią 11,55 m2
4. Pokój dzienny ze schodami 20,27 m2
5. Gabinet 10,90 m2
6. Łazienka 2,93 m2
7. Kotłownia 3,96 m2
8. Wiatrołap 4,58 m2
9. Hol 5,88 m2
10. Kuchnia z jadalnią 11,55 m2
11. Pokój dzienny ze schodami 20,27 m2
12. Gabinet 10,90 m2
13. Łazienka 2,93 m2
14. Kotłownia 3,96 m2

RZUT PIĘTRA

1. Korytarz 4,63 m2
2. Pokój 13,57 m2
3. Garderoba 3,93 m2
4. Pokój 9,27 m2
5. Łazienka 5,97 m2
6. Garderoba 2,30 m2
7. Pokój 9,20 m2
8. Korytarz 4,63 m2
9. Pokój 13,57 m2
10. Garderoba 3,93 m2
11. Pokój 9,27 m2
12. Łazienka 5,97 m2
13. Garderoba 2,30 m2
14. Pokój 9,20 m2

ELEWACJE

SYTUACJA NA DZIAŁCE

PRZEKRÓJ

ZUŻYCIE ENERGII

Projekt domu zgodny z przepisami   WT 2021  
Wskaźnik EP dla domu z wentylacją grawitacyjną (szczegółowe dane w charakterystyce energetycznej)
EP = 66,52 kWh/m2*rok

SZACUNKOWE KOSZTY BUDOWY

Standardowe (uśrednione) [zł]
  • Stan surowy otwarty (Ściany, stropy, więźba dachowa, pokrycie dachu): 101.500
  • Stan surowy zamknięty(stan surowy otwarty wzbogacony o okna, drzwi oraz bramę garażową): 146.500
  • Stan deweloperski (stan surowy zamknięty wzbogacony o instalacje, wylewki, tynki zewnętrzne oraz wewnętrzne,): 233.500
Ceny wyliczone według współczynników.

TECHNOLOGIA I KONSTRUKCJA

Konstrukcja oraz propozycje materiałowe zastosowane w projekcie:
  • ściany: bloczek z betonu komórkowego Ytong24 cm, wełna Isover TF PROFI, tynk
  • strop: Teriva
  • dach: dwuspadowy nachylnie 35', tradycyjna więźba, dachówka ceramiczna, okno dachowe VELUX
  • ogrzewanie: gazowe
  • wentylacja: grawitacyjna

OPIS PROJEKTU

Eco 47 to dom w zabudowie bliźniaczej i dwulokalowej, który skradnie serca miłośników klasyki.
Prosta bryła i dwuspadowy dach zapewnią niskie koszty budowy. Połączenie drewna i klinkieru sprawi, że dom wyróżni się na tle innych budynków w okolicy.
Dużym atutem projektu jest znakomite doświetlenie wszystkich pomieszczeń. Obszerne okna od strony ogrodu zapewnią znakomity kontakt z zielenią. Projekt Eco 47 wyróżnia dodatkowy pokój na parterze oraz szereg funkcjonalności, które zapewnią komfortowe warunki do mieszkania. Jedną z nich są dwie garderoby ulokowane na poddaszu.
Strefę dzienną domu tworzy otwarta kuchnia, łącząca jadalnię z salonem i tarasem, gabinet oraz kompaktowa łazienka. Strefa nocna, ulokowana na piętrze, to trzy sypialnie, dwie garderoby przyległe do pokoi oraz łazienka.
Projekt Eco 47 polecamy zarówno inwestorom indywidualnym, jak i deweloperom poszukującym dla swoich osiedli domu taniego w budowie, z szybkim czasem realizacji inwestycji, a także oferującym niezwykle komfortowe warunki do życia dla jego przyszłych nabywców.

ZOBACZ RÓWNIEŻ

Projekt domu Eco 19
Eco 19
Projekt domu Eco 16
Eco 16
Projekt domu Eco 17
Eco 17
Stropex
EOS
Aluron
Mitek
Velux
EMO